Používame cookies

Súbory cookie a ďalšie technológie sledovania používame na zlepšenie vášho zážitku z prehliadania našich webových stránok, na to, aby sme vám zobrazovali prispôsobený obsah a cielené reklamy, na analýzu návštevnosti našich webových stránok a na pochopenie toho, odkiaľ naši návštevníci prichádzajú. Viac info

 

NADŠTANDARDNÝ BYT NA 12. POSCHODÍ V NOVOSTAVBE LIGET PRI DUNAJI S PANORAMATICKÝM VÝHĽADOM NA MESTO - 2 PARKOVACIE MIESTA

Ulica: Krasovského
Obec: Bratislava-Petržalka
Okres: Bratislava V
Kraj: Bratislavský kraj
Druh: Byty
Typ: Predaj
Typ bytu: 3-izbový byt
Cena v RK

Popis nehnuteľnosti

Ponúkame na predaj skutočne exkluzívny veľkometrážny penthouse s výnimočnou polohou pri Dunaji, priamo  pri Sade Janka Kráľa  na Krasovského ulici. Ak hľadáte niečo luxusné a výnimočné, tento byt určite splní Vaše očakávania.  

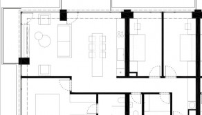
3-izbový byt s 2 priehľadnými balkónmi je situovaný na 12. podlaží v rezidenčnom obytnom komplexe LIGET. Disponuje úžitkovou plochou 112m2 a okamžite Vás uchváti úžasným dizajnom s preskleými stenami od podlahy až po strop a  nádherným panoramatickým výhľadom na  Staré Mesto, panorámu bratislavského hradu a Sad Janka Kráľa.  

Presklené steny sú dominantou bytu a úchvatný výhľad je z každej miestnosti, priehľadné dizajnové balkóny dodávajú tomuto miestu neopakovateľnú atmosféru, celé mesto máte skutočne ako na dlani. 

V byte boli použité najmodernejšie technológie s inteligentným ovládaním na diaľku  a kvalitné materiály s dôrazom na dosiahnutie maximálneho komfortu bývania.

Byt je dokončený do luxusného štandardu bez kuchynskej linky. Vo vstupnej hale a v obývacej izbe sú položené kvalitné drevené parkety, v kúpeľniach veľkoformátové obklady a dlažby a v oboch spálňach je koberec. Byt je vybavený aj požiarnymi senzormi.

Priamo na poschodí je situovaná murovaná pivnica. Na poschodí sa nachádza celkovo 5 bytov, na tejto strane objektu sú na chodbe situované len dva byty. 

PARAMETRE:

  • úžitková plocha 112m2
  • 2 balkóny s výmerou 12m2
  • 2 kúpeľne (jedna s vaňou, jedna so sprchovým kútom a toaletou)
  • samostatná toaleta
  • dve nadzemné kryté parkovacie státia 
  • pivničná kobka na priamo na poschodí
  • kvalitné drevené podlahy
  • koberce v spálňach
  • podlahové kúrenie 
  • stropné chladenie 
  • centrálna klimatizácia
  • inteligentné ovládanie kúrenia, chladenia, automatické nastavovanie žalúzií a tienenia podľa vetra či podľa zvoleného času - smart domácnosť
  • 24 hodinová recepcia
  • možnosť zmeny dispozície na 4 izbový

LOKALITA: 

Liget je premyslene zasadený do prostredia plného zelene, priamo na hranici historického parku - Sadu Janka Kráľa. Výnimočná poloha Vám umožní užívať si výhody bývania v meste, všade máte blízko, do centra mesta či do Eurovey alebo Auparku sa prechádzkou cez most dostanete za pár minút.  Lokalita ponúka aj množstvo voľnočasových aktivít - prechádzky pri Dunaji, korčuľovanie či bicyklovanie na dunajskej hrádzi, športoviská v okolí. 

CENA BYTU : 810 000,- Eur

CENA GARÁŽOVÝCH  STÁTÍ : 2 x 35 000,- Eur

CENA PIVNIČNEJ KOBKY:  10 000,- Eur

ZABEZPEČÍME PRE VÁS:

  • kompletný právny servis pri predaji až po zápis do katastra nehnuteľností 
  • hypotekárny servis
  • znalecký posudok
  • kúpne zmluvy vypracované a autorizované renomovanou právnickou kanceláriou
  • poistenie nehnuteľnosti
  • prepis energií na nového majiteľa

 Kontaktujte nás na tel.č. : 0902 22 22 12, prípadne e-mailom na adrese: kratka@accentreal.sk. Nájdete nás na Drieňovej ul. 34 v Bratislave. 

 

 

Vlastnosti

Status:
aktívne
Vlastníctvo:
osobné
Úžitková plocha:
112 m2
Podlahová plocha:
112 m2
Stav:
novostavba
Typ budovy:
zmiešané
Balkón:
áno
Rok kolaudácie:
2023
Počet poschodí od prízemia vyššie:
18
Pozícia:
vyššie poschodie
Celková plocha:
112 m2
Plocha balkóna:
12 m2
Inžinierske siete:
áno
Voda:
áno
Elektrika:
áno
Kanalizácia:
áno
Elektrika - na pozemku - 230 V:
áno
Elektrika - na pozemku - 380 V:
áno
Kanalizácia - na pozemku - kanalizácia:
áno
Vykurovanie - centrálne:
áno
Telefón:
áno
Internet:
áno
Káblová TV:
áno
Optická sieť:
áno
Status:
aktívne
Vlastníctvo:
osobné
Úžitková plocha:
112 m2
Podlahová plocha:
112 m2
Stav:
novostavba
Typ budovy:
zmiešané
Balkón:
áno
Rok kolaudácie:
2023
Počet poschodí od prízemia vyššie:
18
Pozícia:
vyššie poschodie
Celková plocha:
112 m2
Plocha balkóna:
12 m2
Inžinierske siete:
áno
Voda:
áno
Elektrika:
áno
Kanalizácia:
áno
Elektrika - na pozemku - 230 V:
áno
Elektrika - na pozemku - 380 V:
áno
Kanalizácia - na pozemku - kanalizácia:
áno
Vykurovanie - centrálne:
áno
Telefón:
áno
Internet:
áno
Káblová TV:
áno
Optická sieť:
áno

Informatívna úverová kalkulačka

Pozrieť na mape

Maklér

Mgr. Dana Krátka

Mgr. Dana Krátka

realitný maklér, managing director

  • Slovensky
  • English
  • Česky
  • lrm

Radi Vám poradíme

Podobné nehnuteľnosti