Používame cookies

Súbory cookie a ďalšie technológie sledovania používame na zlepšenie vášho zážitku z prehliadania našich webových stránok, na to, aby sme vám zobrazovali prispôsobený obsah a cielené reklamy, na analýzu návštevnosti našich webových stránok a na pochopenie toho, odkiaľ naši návštevníci prichádzajú. Viac info

 

Popis nehnuteľnosti

ACCENT REAL ponúka  na predaj priestranný a účelný dvojpodlažný tehlový rodinný dom so 6-izbami a s garážou vo vyhľadávanej lokalite blízko Bratislavy, v obci Zálesie. 

Úžitková plocha domu je 200 m2. Je situovaný neďaleko peknej rekreačnej lokality Korzo pri vode, ktorá je obľúbeným miestom na trávenie voľného času.

Nízkoenergetický, tehlový pasívny dom s rekuperáciou a tepelným čerpadlom disponuje  skutočne veľkorysým obytným priestorom a  poskytuje maximálny komfort a súkromie všetkým členom rodiny.   

DISPOZIČNÉ RIEŠENIE:

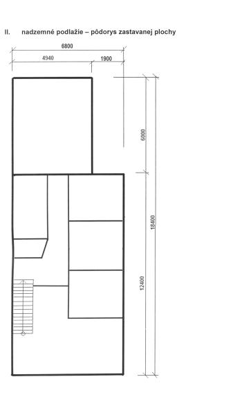
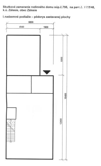
Prízemie: vstupná časť (zádverie), chodba, samostatná toaleta, otvorený obytný priestor spájajúci kuchynskú a jedálenskú časť s obývacou izbou, schodisko, veľká komora, veľká technická miestnosť s práčkou a 320l zásobníkom na vodu za kuchyňou  

1. podlažie: schodisko, chodba,  po ľavej strane samostatná toaleta, veľkorysá kúpeľňa so sprchovým kútom, vpravo tri samostatné spálne, na konci chodby obývacia izba  (môže slúžiť aj ako ďalšia spálňa).

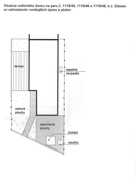
Dom je napojený na vodovod a elektrinu.  Kúrenie je riešené radiátormi a tepelným čerpadlom.  Objem septiku je 12m3, na budúci rok je naplánovaná výstavba kanalizácie v obci. Na pozemku sa nachádza aj studňa s pitnou vodou. 

ZÁKLADNÉ PARAMETRE - ZHRNUTIE:

celková úžitková plocha : 200 m2

rozloha pozemku: 313 m2

6 izieb, kuchyňa, technická miestnosť, komora, 2 toalety, kúpeľňa

tepelné čerpadlo - kúrenie radiátormi

stavebný materiál - tehla, zateplenie: 25mm polystyrén

okná sú plastové s izolačným dvojsklom a vnútornými žalúziami

dom je napojený na verejný rozvod vody a elektriny, má septik

dom sa predáva čiastočne zariadený

typ domu - dvojpodlažný s rovnou strechou sTatrafolom

rekuperácia v celom dome

optický internet

garáž

alarm

BENEFITY:
1. Dom ponúka možnosť okamžitého bývania, bez nutnosti akýchkoľvek zásahov 

2. Predáva sa zariadený - nemusíte nič zháňať a nepotrebujete žiadne ďalšie investície (úplne nová elektrická rúra, nová varná doska, práčka, sušička.)

3. Skutočne veľkorysý obytný priestor - 6 izieb a 200m2 úžitkovej plochy

4. Nízke mesačné náklady vďaka tepelnému čerpadlu a rekuperácii  

5. Klimatizácia 

 

LOKALITA:
Je ideálna na pokojné rodinné bývanie s výbornými možnosťami na voľnočasové aktivity. Prostredie poskytuje príjemný pokoj a relax pre celú rodinu. V súčasnosti je Zálesie dynamicky sa rozvíjajúcou obcou s veľkou perspektívou do budúcnosti. Nachádza sa tu škôlka, detské ihriská, lekáreň, v blízkosti je autobusová zastávka. Susedná obec Ivanka pri Dunaji dopĺňa kompletnú občiansku vybavenosť - školu, tri škôlky, obchody, obľúbené reštaurácie, kaviarne, farmárske potraviny, služby, v blízkosti je aj Metro. Okolie poskytuje mnoho možností na voľnočasové aktivity.  Obyvatelia veľmi radi využívajú na relax hlavne v letných mesiacoch aj blízke jazero Zelená voda. Okolité lesy sú ideálnym miestom na prechádzky alebo cyklistické výlety.

MESAČNÉ NÁKLADY:

elektrina 117,- Eur

voda 15,- Eur

CENA: Cena domu : 325 000,- Eur

Pozrite si aj krátke video: https://youtu.be/vzLuHQCDuC4

Ak uvažujete o kúpe rodinného domu, ale potrebujete najskôr predať svoju nehnuteľnosť, vyriešime všetko súčasne - aj predaj Vašej nehnuteľnosti, aj kúpu novej, vrátane financovania,hypotekárneho servisu a právneho poradenstva.

REZERVÁCIA BEZ RIZIKA - PRI VYUŽITÍ NÁŠHO FINANČNÉHO SERVISU VÁM GARANTUJEME VRÁTENIE REZERVAČNEJ ZÁLOHY, AK HYPOTÉKU NEDOSTANETE.

Poskytneme Vám kompletný právny servis pri predaji až po zápis do katastra nehnuteľností. Radi Vám pomôžeme aj s hypotekárnym poradenstvom a výberom čo najvhodnejšieho financovania Vašej novej nehnuteľnosti. Zabezpečíme aj súdneho znalca, právne poradenstvo,vypracovanie autorizovaných zmlúv, vklad do katastra vrátane správnych poplatkov, poistenie Vašej nehnuteľnosti.
Prevedieme Vás bezpečne celým procesom predaja a poskytneme asistenciu pri prepise energií na nového majiteľa.
Ak by ste radi získali viac informácií, kontaktujte nás na tel.č. : 0902 222 212, prípadne e-mailom na adrese: kratka@accentreal.sk. Nájdete nás na Drieňovej ul. 34 v Bratislave.
S radosťou Vám dom ukážeme.

 

 

 

 

Vlastnosti

Status:
aktívne
Vlastníctvo:
osobné
Plocha pozemku:
313 m2
Úžitková plocha:
200 m2
Zastavaná plocha:
200 m2
Podlahová plocha:
200 m2
Stav:
novostavba
Energetický certifikát:
A
Garáž:
áno
Rok kolaudácie:
2013
Počet poschodí od prízemia vyššie:
1
Celková plocha:
200 m2
Počet garáží:
1
Plocha garáže:
40 m2
Inžinierske siete:
áno
Voda:
áno
Elektrika:
áno
Plyn:
áno
Voda - na pozemku:
áno
Voda - na pozemku - studňa:
áno
Elektrika - na pozemku:
áno
Elektrika - na pozemku - 380 V:
áno
Vykurovanie - lokálne:
áno
Vykurovanie - emitory:
áno
Status:
aktívne
Vlastníctvo:
osobné
Plocha pozemku:
313 m2
Úžitková plocha:
200 m2
Zastavaná plocha:
200 m2
Podlahová plocha:
200 m2
Stav:
novostavba
Energetický certifikát:
A
Garáž:
áno
Rok kolaudácie:
2013
Počet poschodí od prízemia vyššie:
1
Celková plocha:
200 m2
Počet garáží:
1
Plocha garáže:
40 m2
Inžinierske siete:
áno
Voda:
áno
Elektrika:
áno
Plyn:
áno
Voda - na pozemku:
áno
Voda - na pozemku - studňa:
áno
Elektrika - na pozemku:
áno
Elektrika - na pozemku - 380 V:
áno
Vykurovanie - lokálne:
áno
Vykurovanie - emitory:
áno

Informatívna úverová kalkulačka

Pozrieť na mape

Maklér

Mgr. Dana Krátka

Mgr. Dana Krátka

realitný maklér, managing director

  • Slovensky
  • English
  • Česky
  • lrm

Radi Vám poradíme

Podobné nehnuteľnosti