Používame cookies

Súbory cookie a ďalšie technológie sledovania používame na zlepšenie vášho zážitku z prehliadania našich webových stránok, na to, aby sme vám zobrazovali prispôsobený obsah a cielené reklamy, na analýzu návštevnosti našich webových stránok a na pochopenie toho, odkiaľ naši návštevníci prichádzajú. Viac info

 

PRÉMIOVÉ OBCHODNÉ PRIESTORY S VÝKLADMI NA FREKVENTOVANEJ ULICI V CENTRE - KRÍŽNA UL.

Ulica: Krížna
Obec: Bratislava-Staré Mesto
Okres: Bratislava I
Kraj: Bratislavský kraj
Druh: Priestory
Typ: Prenájom
Typ objektu: Obchodné priestory
3 300 €/mesiac

Popis nehnuteľnosti

Accent real exkluzívne ponúka na prenájom nadštandardné, kompletne zrekonštruované obchodné= priestory s veľkými výkladmi priamo na frekventovanej ulici v centre mesta - na rohu Krížnej ulice a Odborárskeho námestia. 

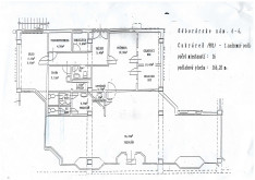
Priestory majú celkovú výmeru 166m2. Dispozične pozostáva z hlavného obchodného priestoru s veľkoformátovými oknami a z niekoľkých menších miestností, ktoré môžu slúžiť ako kancelárie, sklady, zázemie. K dispozícii sú dámske aj pánske sociálne zariadenia v hlavnej časti obchodného priestoru a taktiež toalety aj sprcha v zázemí.    

Priestory sú vybavené stropnou klimatizáciou. Vykurovanie je riešené radiátormi. 

Priestory sú ideálne ako prevádzka obchodu alebo služieb, kancelárie, kozmetický salón, kaderníctvo. Nie sú vhodné ako gastroprevádzka. 

Cena nájmu: 3300,- Eur + energie 

Ak Vás ponuka zaujala, radi Vám priestory ukážeme.

Kontaktujte nás na tel.č. 0902 22 22 12 (Mgr. dana Krátka), mailom na : kratka@accentreal.sk alebo osobne v kancelárii Accent real na Drieňovej 34 v Bratislave. 

Vlastnosti

Status:
aktívne
Vlastníctvo:
osobné
Úžitková plocha:
166 m2
Zastavaná plocha:
166 m2
Stav:
úplne prerobený
Typ budovy:
zmiešané
Sklad:
áno
Pozícia:
Prízemie
Celková plocha:
166 m2
Inžinierske siete:
áno
Status:
aktívne
Vlastníctvo:
osobné
Úžitková plocha:
166 m2
Zastavaná plocha:
166 m2
Stav:
úplne prerobený
Typ budovy:
zmiešané
Sklad:
áno
Pozícia:
Prízemie
Celková plocha:
166 m2
Inžinierske siete:
áno

Pozrieť na mape

Maklér

Mgr. Dana Krátka

Mgr. Dana Krátka

realitný maklér, managing director

  • Slovensky
  • English
  • Česky
  • lrm

Radi Vám poradíme

Podobné nehnuteľnosti