Používame cookies

Súbory cookie a ďalšie technológie sledovania používame na zlepšenie vášho zážitku z prehliadania našich webových stránok, na to, aby sme vám zobrazovali prispôsobený obsah a cielené reklamy, na analýzu návštevnosti našich webových stránok a na pochopenie toho, odkiaľ naši návštevníci prichádzajú. Viac info

 

VEĽMI PEKNÝ, PRIESTRANNÝ 4-IZBOVÝ BUNGALOV(128M2) V NADŠTANDARDE AJ S KUCHYŇOU A SPOTREBIČMI, POZEMOK 360M2, TERASA,EXT. ŽALÚZIE AJ PLOT V CENE

Ulica: Hlavná
Obec: Kráľová pri Senci
Okres: Senec
Kraj: Bratislavský kraj
Druh: Domy
Typ: Predaj
Typ domu: Rodinný dom
295 000 €

Popis nehnuteľnosti

ACCENT REAL exkluzívne ponúka na predaj veľmi peknú novostavbu 4-izbového bungalovu v mimoriadne obľúbenej obci Kráľová pri Senci, len 4km od Senca. Dom je situovaný v uzavretej rezidenčnej zóne rodinných domov s vlastným vjazdom a s vlastnou prístupovou cestou. 

Na fotografiách vidíte samostatne stojaci bungalov, ten sa predáva v cene 325 000,- Eur, v cene 295 000,- Eur sa predáva úplne rovnaký dom, len je vyhotovený ako dvojdom, so 70 cm deliacou stenou so zvukovou izoláciou.        

Dom sa bude predávať kompletne dokončený do kvalitného štandardu - lam inátové podlahy,   kvalitné obklady a dlažby, špičková sanita v kúpeľni, svietidlá v celom dome, zrkadlá, kúpeľňový nábytok, dvere, zárubne a čo je naozaj výnimočný benefit pri novostavbách - predáva sa vrátane kuchynskej linky. Farbu kuchynskej linky si môžete vybrať. V cene už sú zahrnuté aj exteriérové žalúzie. 

 NADŠTANDARDNÉ BENEFITY: 

  • kvalitné dokončenie do štandardu vrátane kuchyne a spotrebičov
  • kompletne vybavená kúpeľňa - vrátane sanity,  kúpeľňového nábytku aj zrkadiel
  • laminátové podlahy, kvalitné obklady a dlažby
  • dvere a zárubne
  • svietidlá v celom dome 
  • exteriérové úpravy pozemku
  • kompletné oplotenie pozemku
  • exteriérové elektrické žalúzie v cene
  • vybudované tri parkovacie miesta priamo pred domom (exteriérová dlažba)
  • ďalšie parkovacie miesto pred vjazdom do rezidenčnej zóny
  • predpríprava na klimatizáciu

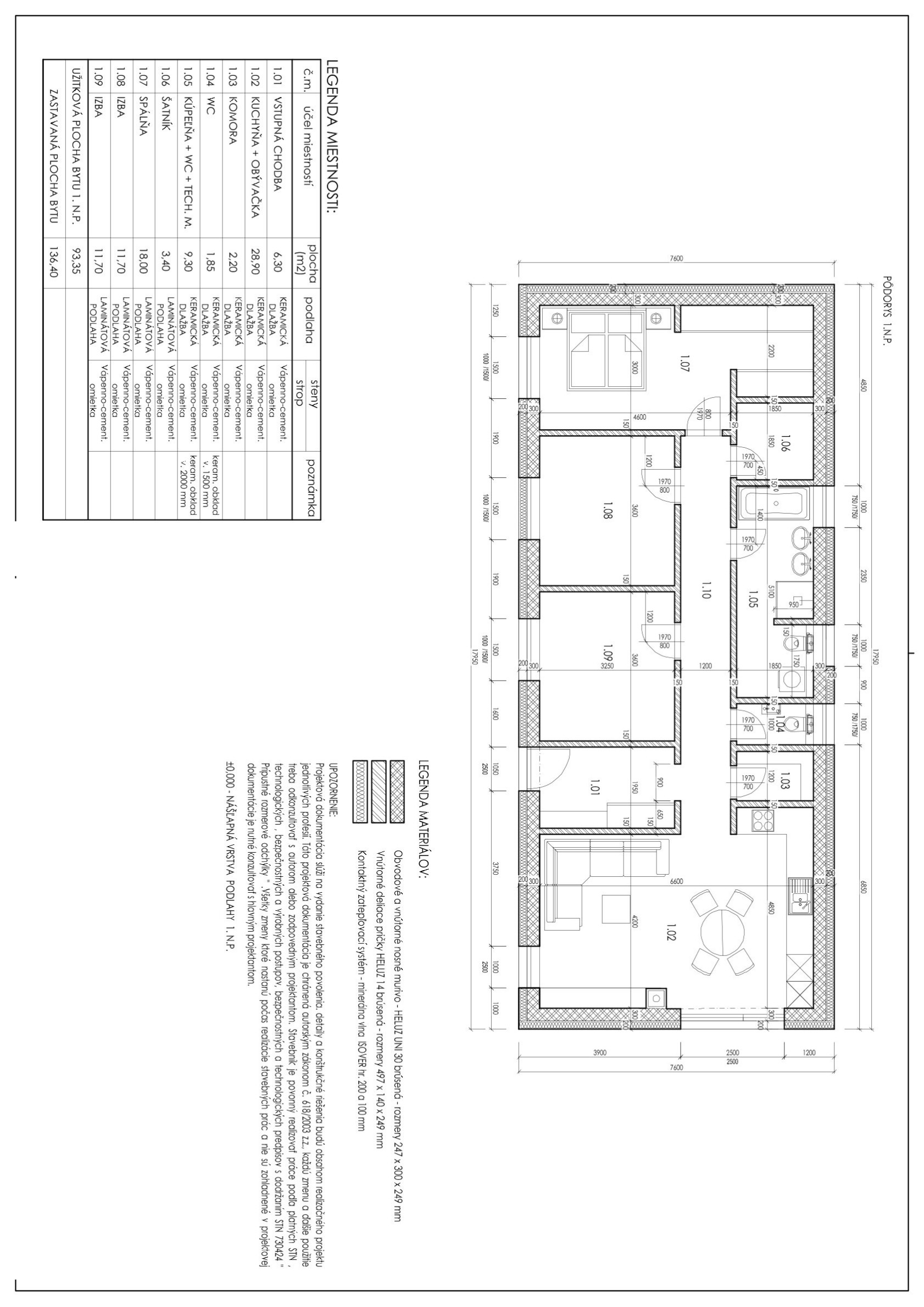
Dom má valbovú strechu a disponuje celkovou úžitkovou plochou 128m2,  21m2 je plocha terasy zo severskej borovice. Celková zastavaná plocha domu s terasou je 157,40m2.  

Priamo na pozemku pred domom sú vybudované tri parkovacie miesta a jedno parkovacie miesto prislúcha k domu (vlastníctvo 1/1) aj na parkovisku pred vjazdom do rezidenčnej zóny rodinných domov.  Zároveň kupujúci nadobudne aj podiel (1/7) na prístupovej ceste. 

DISPOZÍCIA A VÝMERY MIESTNOSTÍ: 

Jedná sa o kvalitnú nízkoenergetickú  stavbu so štyrmi veľkými izbami (obývacia izba spojená s kuchyňou a 3 samostatné spálne), so skutočne  veľkou kúpeľňou, pozostávajúcou z dvoch miestností, s dvoma toaletami, (jedna z nich je samostatná, jedna je umiestnená v čiastočne oddelenej časti kúpeľne) komorou a samostatným šatníkom.    vstupná chodba: 6,3m2, hala: 11,5m2, kuchyňa s obývačkou: 28,9m2, komora: 2,2m2, WC: 1,85m2, kúpeľňa + WC+ technická miestnosť: 9,3m2, šatník: 3,4m2, spálňa: 18m2, izba: 11,7m2, izba: 11,7m2.  

ZÁKLADNÉ TECHNICKÉ PARAMETRE:

  • Úžitková plocha domu 128m2  (107m2 podlahová plocha domu + 21m2 terasa) 
  • Zastavaná plocha : 136,4m2 + terasa 21m2
  • Siete: voda, elektrina, kanalizácia
  • Rozloha pozemku: 347m2  + 13m2 parkovacie miesto +123m2 podiel na prístupovej ceste   (spolu 483m2) 
  • Materiál pálená tehla Wienerberger  300mm
  • Vonkajšie zateplenie 200mm polystyrén + farebná omietka
  • Sedlová strecha, strešná krytina: betónová škridla Terran
  • Strešná izolácia stropu Nobasil 300mm
  • Vnútorné omietky BAUMIT
  • Kúrenie:  podlahové elektrické kúrenie, elektrický bojler so 120l zásobníkom na vodu
  • Plastové okná, 7 komorové trojsklo, antracit exteriér, biela interiér  
  • Rozvody vody, elektriny, elektrické zásuvky, káblové rozvody, kanalizácia
  •  Predpríprava na alarm a kamerový systém
  • Zabudované kastlíky na exteriérové žalúzie + elektrické žalúzie v cene
  •  Siete: elektrina, mestská voda, kanalizácia, optický internet
  • Terasa: 21m2  
  • Oplotenie pozemku v cene
  • Vlastnícky podiel na súkromnej prístupovej komunikácii

CENA DOMU KOMPLET  : 295 000,- Eur

LOKALITA:

Kráľová pri Senci je obec s viac ako 2000 obyvateľmi. Rozkladá sa na oboch brehoch rieky Čierna voda, ktorá preteká celou obcou. Lokalita je mimoriadne obľúbená  na  bývanie vďaka perfektnej dostupnosti do Senca aj do Bratislavy a zároveň skvelej pokojnej atmosfére.  Momentálne prebieha rozsiahla modernizácia obce, ktorá plánuje investovať významné zdroje do využitia termálnych prameňov. 

V prípade využitia nášho hypotekárneho servisu garantujeme vrátenie rezervačnej zálohy, ak hypotéku nedostanete. Nič neriskujete. 

Máte záujem o obhliadku alebo viac informácií? Neváhajte nás kontaktovať – tento dom čaká možno práve na Vás!

Zabezpečíme:

  • kompletný právny servis 
  • súdno-znalecký posudok
  • poradenstvo renomovanej právnickej kancelárie 
  • vypracovanie autorizovaných kúpnych zmlúv - najvyššia forma právnej ochrany  
  • elektronický vklad do katastra vrátane správnych poplatkov 
  • poistenie Vašej nehnuteľnosti 
  • prepis energií na nového majiteľa 

 Ak Vás táto skvelá ponuka zaujala, radi Vám nehnuteľnosť ukážeme a poskytneme Vám všetky informácie. Kontaktujte nás na tel.č. : 0902 222 212, prípadne e-mailom na adrese: kratka@accentreal.sk. Kanceláriu ACCENT REAL nájdete na Drieňovej ul. 34 v Bratislave.  

 

Vlastnosti

Status:
aktívne
Vlastníctvo:
osobné
Plocha pozemku:
360 m2
Šírka pozemku:
14 m
Dĺžka pozemku:
30 m
Úžitková plocha:
128 m2
Zastavaná plocha:
157 m2
Podlahová plocha:
128 m2
Stav:
novostavba
Počet izieb:
4
Energetický certifikát:
A
Energetická náročnosť budovy:
Nízkoenergetický
Typ budovy:
tehla
Typ výbavy:
kompletne vybavený
Terasa:
áno
Špajza:
áno
Sklad:
áno
Rok výstavby:
2026
Rok poslednej rekonštrukcie:
2026
Rok kolaudácie:
2026
Celková plocha:
128 m2
Terasa plocha:
21 m2
Počet vonkajších parkovacích miest:
4
Inžinierske siete:
áno
Voda:
áno
Elektrika:
áno
Kanalizácia:
áno
Elektrika - na pozemku:
áno
Elektrika - na pozemku - 230 V:
áno
Elektrika - na pozemku - 380 V:
áno
Kanalizácia - na pozemku - kanalizácia:
áno
Vykurovanie - podlahové:
áno
Vykurovanie - lokálne:
áno
Internet:
áno
Optická sieť:
áno
Status:
aktívne
Vlastníctvo:
osobné
Plocha pozemku:
360 m2
Šírka pozemku:
14 m
Dĺžka pozemku:
30 m
Úžitková plocha:
128 m2
Zastavaná plocha:
157 m2
Podlahová plocha:
128 m2
Stav:
novostavba
Počet izieb:
4
Energetický certifikát:
A
Energetická náročnosť budovy:
Nízkoenergetický
Typ budovy:
tehla
Typ výbavy:
kompletne vybavený
Terasa:
áno
Špajza:
áno
Sklad:
áno
Rok výstavby:
2026
Rok poslednej rekonštrukcie:
2026
Rok kolaudácie:
2026
Celková plocha:
128 m2
Terasa plocha:
21 m2
Počet vonkajších parkovacích miest:
4
Inžinierske siete:
áno
Voda:
áno
Elektrika:
áno
Kanalizácia:
áno
Elektrika - na pozemku:
áno
Elektrika - na pozemku - 230 V:
áno
Elektrika - na pozemku - 380 V:
áno
Kanalizácia - na pozemku - kanalizácia:
áno
Vykurovanie - podlahové:
áno
Vykurovanie - lokálne:
áno
Internet:
áno
Optická sieť:
áno

Informatívna úverová kalkulačka

Pozrieť na mape

Maklér

Mgr. Dana Krátka

Mgr. Dana Krátka

realitný maklér, managing director

  • Slovensky
  • English
  • Česky
  • lrm

Radi Vám poradíme

Podobné nehnuteľnosti