
Ulica: | Hlavná |
---|---|
Obec: | Kráľová pri Senci |
Okres: | Senec |
Kraj: | Bratislavský kraj |
Druh: | Domy |
Typ: | Predaj |
Typ domu: | Rodinný dom |
Exkluzívne ponúkame na predaj novostavbu 4-izbového bungalovu v mimoriadne obľúbenej obci Kráľová pri Senci, len 4km od Senca. Dom sa predáva dokončený do štádia holodom.
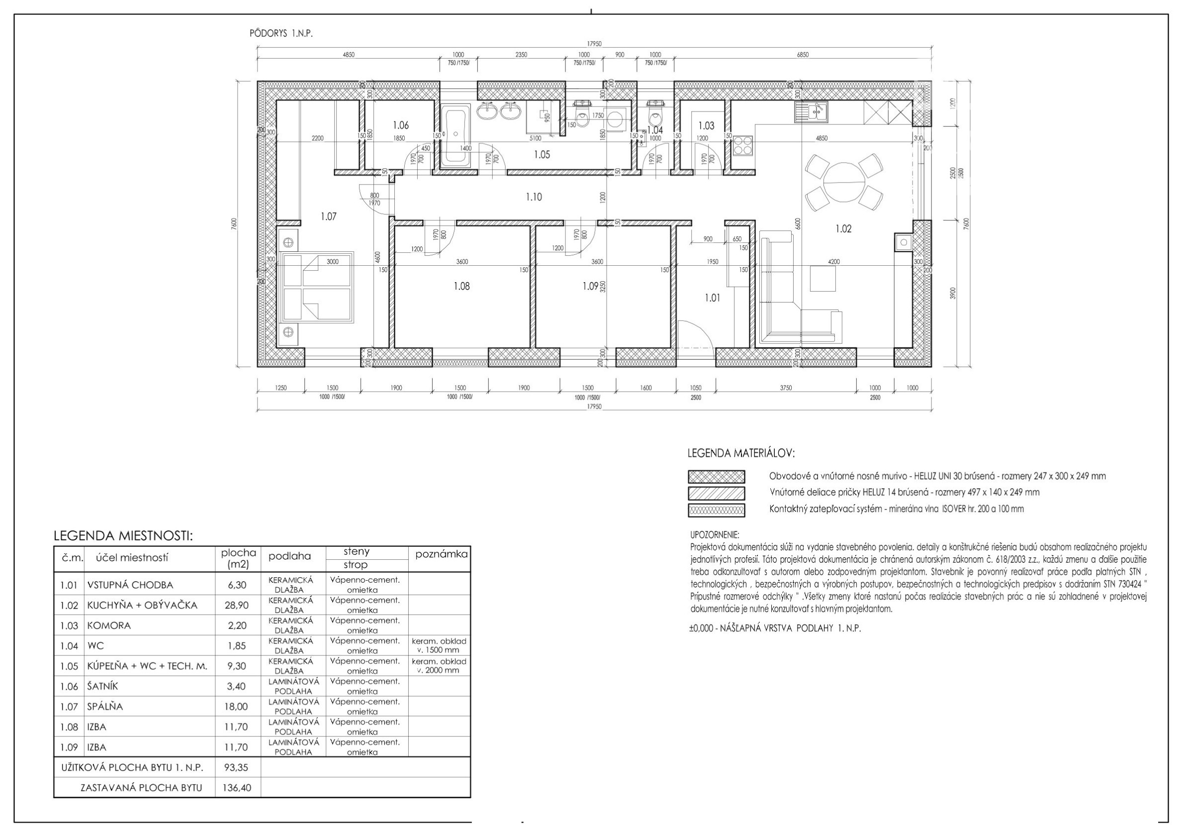
Jedná sa o kvalitnú nízkoenergetickú stavbu so štyrmi izbami (obývacia izba spojená s kuchyňou a 3 samostatné spálne), s veľkou kúpeľňou, dvoma toaletami , komorou a samostatným šatníkom.
Dom má valbovú strechu a disponuje úžitkovou plochou 105m2. Zastavaná plocha domu je 136,40m2 + 21m2 terasa.
Priamo na pozemku pred domom sú vyhradené tri parkovacie miesta a jedno parkovacie miesto prislúcha k domu (vlastníctvo 1/1) aj na parkovisku pred vjazdom do rezidenčnej zóny rodinných domov. Zároveň kupujúci nadobudne aj podiel (1/7) na prístupovej ceste.
DISPOZÍCIA A VÝMERY MIESTNOSTÍ:
vstupná chodba: 6,3m2, hala: 11,5m2, kuchyňa s obývačkou: 28,9m2, komora: 2,2m2, WC: 1,85m2, kúpeľňa + WC+ technická miestnosť: 9,3m2, šatník: 3,4m2, spálňa: 18m2, izba: 11,7m2, izba: 11,7m2.
ZÁKLADNÉ TECHNICKÉ PARAMETRE:
Úžitková plocha 126m2 (105m2 podlahová plocha domu + 21m2 terasa)
Zastavaná plocha: 136,4m2 + terasa 21m2
Rozloha pozemku: 410m2
Materiál pálená tehla Wienerberger 300mm
Vonkajšie zateplenie 200mm polystyrén + farebná omietka
Sedlová strecha, strešná krytina: betónová škridla Terran
Strešná izolácia stropu Nobasil 300mm
Vnútorné omietky BAUMIT
Kúrenie: podlahové elektrické kúrenie, elektrický bojler so 120l zásobníkom na vodu
Plastové okná, 7 komorové trojsklo, antracit exteriér, biela interiér
Rozvody vody, elektriny, elektrické zásuvky, káblové rozvody, kanalizácia
Predpríprava na alarm a kamerový systém
Zabudované kastlíky na exteriérové žalúzie
Siete: elektrina, mestská voda, kanalizácia
Terasa: 21m2
Oplotenie pozemku v cene
Podiel na súkromnej prístupovej komunikácii
CENA DOMU HOLODOM: 275 000,- Eur.
CENA DOMU ŠTANDARD S KUCHYNSKOU LINKOU: 295 000,- Eur.
Cena zahŕňa:
LOKALITA:
Kráľová pri Senci je obec s viac ako 2000 obyvateľmi. Rozkladá sa na oboch brehoch rieky Čierna voda, ktorá preteká celou obcou. Lokalita je mimoriadne obľúbená na bývanie vďaka perfektnej dostupnosti do Senca aj do Bratislavy a zároveň skvelej pokojnej atmosfére. Momentálne prebieha rozsiahla modernizácia obce, ktorá plánuje investovať významné zdroje do využitia termálnych prameňov.
Ak Vás táto skvelá ponuka zaujala, radi Vám nehnuteľnosť ukážeme a poskytneme Vám všetky informácie. Kontaktujte nás na tel.č. : 0902 222 212, prípadne e-mailom na adrese: kratka@accentreal.sk. Kanceláriu ACCENT REAL nájdete na Drieňovej ul. 34 v Bratislave.
realitný maklér, managing director