
Ulica: | Malinovská |
---|---|
Obec: | Zálesie |
Okres: | Senec |
Kraj: | Bratislavský kraj |
Druh: | Domy |
Typ: | Predaj |
Typ domu: | Rodinný dom |
ACCENT REAL ponúka na predaj priestranný a účelný dvojpodlažný tehlový rodinný dom so 6-izbami a s garážou vo vyhľadávanej lokalite blízko Bratislavy, v obci Zálesie.
Úžitková plocha domu je 200 m2. Je situovaný neďaleko peknej rekreačnej lokality Korzo pri vode, ktorá je obľúbeným miestom na trávenie voľného času.
Nízkoenergetický, tehlový pasívny dom s rekuperáciou a tepelným čerpadlom disponuje skutočne veľkorysým obytným priestorom a poskytuje maximálny komfort a súkromie všetkým členom rodiny.
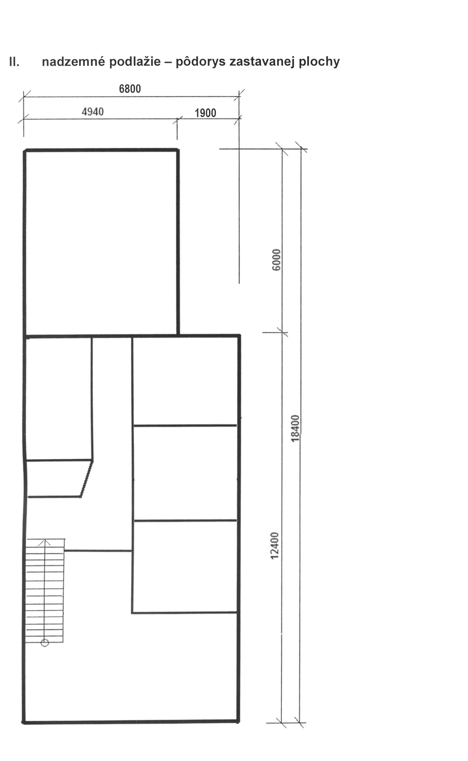
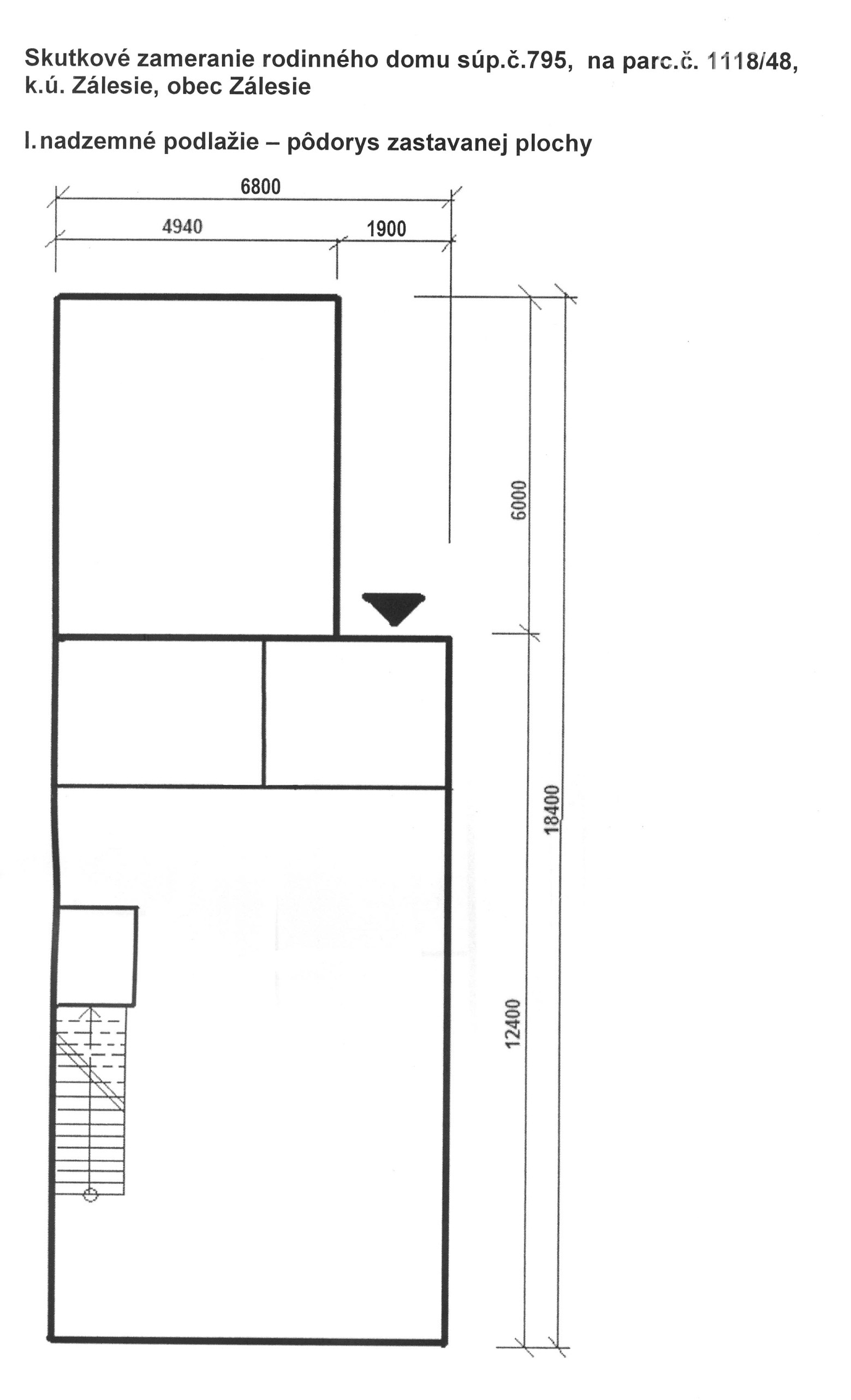
DISPOZIČNÉ RIEŠENIE:
Prízemie: vstupná časť (zádverie), chodba, samostatná toaleta, otvorený obytný priestor spájajúci kuchynskú a jedálenskú časť s obývacou izbou, schodisko, veľká komora, veľká technická miestnosť s práčkou a 320l zásobníkom na vodu za kuchyňou
1. podlažie: schodisko, chodba, po ľavej strane samostatná toaleta, veľkorysá kúpeľňa so sprchovým kútom, vpravo tri samostatné spálne, na konci chodby obývacia izba (môže slúžiť aj ako ďalšia spálňa).
Dom je napojený na vodovod a elektrinu. Kúrenie je riešené radiátormi a tepelným čerpadlom. Objem septiku je 12m3, na budúci rok je naplánovaná výstavba kanalizácie v obci. Na pozemku sa nachádza aj studňa s pitnou vodou.
ZÁKLADNÉ PARAMETRE - ZHRNUTIE:
celková úžitková plocha : 200 m2
rozloha pozemku: 313 m2
6 izieb, kuchyňa, technická miestnosť, komora, 2 toalety, kúpeľňa
tepelné čerpadlo - kúrenie radiátormi
stavebný materiál - tehla, zateplenie: 25mm polystyrén
okná sú plastové s izolačným dvojsklom a vnútornými žalúziami
dom je napojený na verejný rozvod vody a elektriny, má septik
dom sa predáva čiastočne zariadený
typ domu - dvojpodlažný s rovnou strechou sTatrafolom
rekuperácia v celom dome
optický internet
garáž
alarm
BENEFITY:
1. Dom ponúka možnosť okamžitého bývania, bez nutnosti akýchkoľvek zásahov
2. Predáva sa zariadený - nemusíte nič zháňať a nepotrebujete žiadne ďalšie investície (úplne nová elektrická rúra, nová varná doska, práčka, sušička.)
3. Skutočne veľkorysý obytný priestor - 6 izieb a 200m2 úžitkovej plochy
4. Nízke mesačné náklady vďaka tepelnému čerpadlu a rekuperácii
5. Klimatizácia
LOKALITA:
Je ideálna na pokojné rodinné bývanie s výbornými možnosťami na voľnočasové aktivity. Prostredie poskytuje príjemný pokoj a relax pre celú rodinu. V súčasnosti je Zálesie dynamicky sa rozvíjajúcou obcou s veľkou perspektívou do budúcnosti. Nachádza sa tu škôlka, detské ihriská, lekáreň, v blízkosti je autobusová zastávka. Susedná obec Ivanka pri Dunaji dopĺňa kompletnú občiansku vybavenosť - školu, tri škôlky, obchody, obľúbené reštaurácie, kaviarne, farmárske potraviny, služby, v blízkosti je aj Metro. Okolie poskytuje mnoho možností na voľnočasové aktivity. Obyvatelia veľmi radi využívajú na relax hlavne v letných mesiacoch aj blízke jazero Zelená voda. Okolité lesy sú ideálnym miestom na prechádzky alebo cyklistické výlety.
MESAČNÉ NÁKLADY:
elektrina 117,- Eur
voda 15,- Eur
CENA: Cena domu : 325 000,- Eur
Pozrite si aj krátke video: https://youtu.be/vzLuHQCDuC4
Ak uvažujete o kúpe rodinného domu, ale potrebujete najskôr predať svoju nehnuteľnosť, vyriešime všetko súčasne - aj predaj Vašej nehnuteľnosti, aj kúpu novej, vrátane financovania,hypotekárneho servisu a právneho poradenstva.
REZERVÁCIA BEZ RIZIKA - PRI VYUŽITÍ NÁŠHO FINANČNÉHO SERVISU VÁM GARANTUJEME VRÁTENIE REZERVAČNEJ ZÁLOHY, AK HYPOTÉKU NEDOSTANETE.
Poskytneme Vám kompletný právny servis pri predaji až po zápis do katastra nehnuteľností. Radi Vám pomôžeme aj s hypotekárnym poradenstvom a výberom čo najvhodnejšieho financovania Vašej novej nehnuteľnosti. Zabezpečíme aj súdneho znalca, právne poradenstvo,vypracovanie autorizovaných zmlúv, vklad do katastra vrátane správnych poplatkov, poistenie Vašej nehnuteľnosti.
Prevedieme Vás bezpečne celým procesom predaja a poskytneme asistenciu pri prepise energií na nového majiteľa.
Ak by ste radi získali viac informácií, kontaktujte nás na tel.č. : 0902 222 212, prípadne e-mailom na adrese: kratka@accentreal.sk. Nájdete nás na Drieňovej ul. 34 v Bratislave.
S radosťou Vám dom ukážeme.
realitný maklér, managing director